You are here:

  • Home
  • 2 Bedroom flat

4 Falcon House

2-Bedroom Flat

Falcon House
Fleet GU51 3UB Local area connection required

FALCON HOUSE

This two bedroom, ground floor apartment is in Fleet. Parking provided! Available on Shared Ownership resale you could buy with just a 5% deposit.

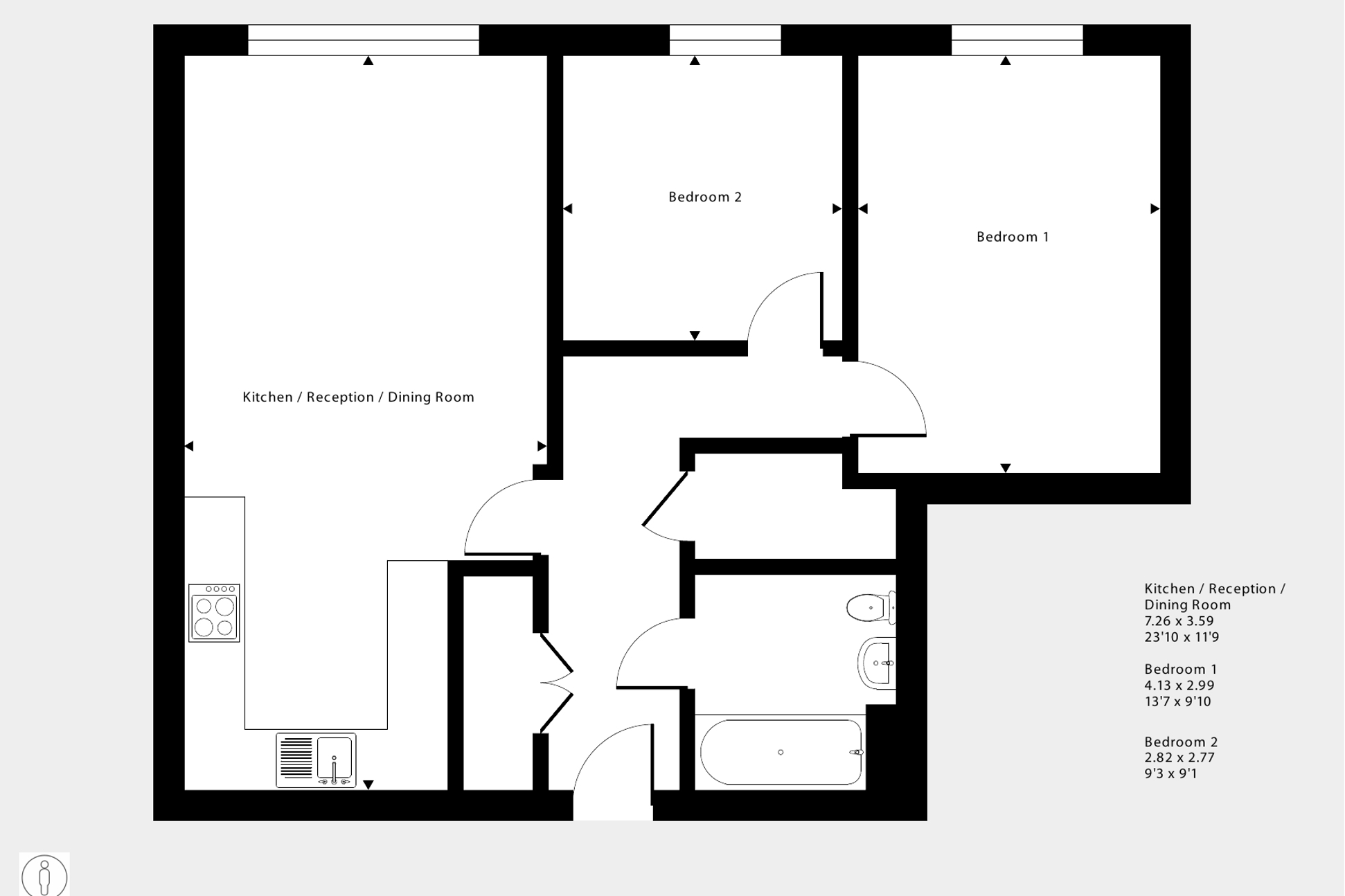
Featuring a spacious open-plan living area. The kitchen has integrated appliances including a fridge freezer, dishwasher, oven, hob and hood.

There are two comfortable bedrooms. The bathroom has a modern, white suite.

You'll also have ample storage and an allocated parking space.

  • Tenure: Leasehold.
  • Council tax band: B.
  • Service charge is reviewed once a year.

Please note that a local connection to Hart is required. This could mean living, working or having family living in the area.

Download EPC

Download Key Information Document

Features

  • Beds 2 Bedrooms
  • Bath 1 Bathroom
  • Tick Lease term remaining: 988 years
  • Tick Spacious open-plan living area
  • Tick Fitted kitchen with integrated appliances
  • Tick Modern, white bathroom suite
  • Tick Your own parking space

Floor Plans

Email floor plans

Share floor plans

Floor plan

Use two fingers to zoom
floor plan

Email floor plans

Share floor plans

  • floor plan image

Shared Ownership

In this section, you'll find lots of handy information about buying Shared Ownership home, including how to know if you're eligible, and what home improvements you can make.

How it works

Not sure if you're eligible?

How to apply How it works

Help & advice

We've a whole host of guides covering lots of topics. So whether you're a first-time buyer, second stepper, Shared Ownership seller or existing home owner in need of some guidance, check out our help and advice section.

Find out more

Wondering about your next steps?

Buying guides Find out more

Similar Developments

Coming Soon
Warbler Park

Warbler Park

Normandy

Warbler Park is a new collection of two and three bedroom homes set in the picturesque village of Normandy. Situated close to Normandy Common and Loseley Park, you’ll be ...

COMING SOON
The Meadow

The Meadow

Swallowfield

The Meadow is a new collection of three bedroom houses set in the welcoming village of Swallowfield. You’ll have lots to explore, with a choice of shops, pubs and eateries ...

COMING SOON
Brickmark Place

Brickmark Place

Bracknell

Brickmark Place is a new collection of one and two bedroom shared ownership apartments in Bracknell, just a short stroll from The Lexicon with its shops, restaurants and ...

Home Apartments

Find Us

By appointment only.

Address

Falcon House
Falcon House
Cody Close
Fleet
GU51 3UB

MarkerView on Google Map

We're award winning

FTB Awards22 HC Dark (1) FTB Awards24 HC Dark BRPA WINNER Website Version WHA25 Logo Gold