You are here:

  • Home
  • 2 Bedroom flat

2 Gray Court

2-Bedroom Flat

Gray Court
Windsor SL4 3SW Local area connection required

GRAY COURT

This two bedroom, ground floor apartment is in Windsor. Benefit from a communal garden! Available on Shared Ownership resale you could buy with just a 5% deposit.

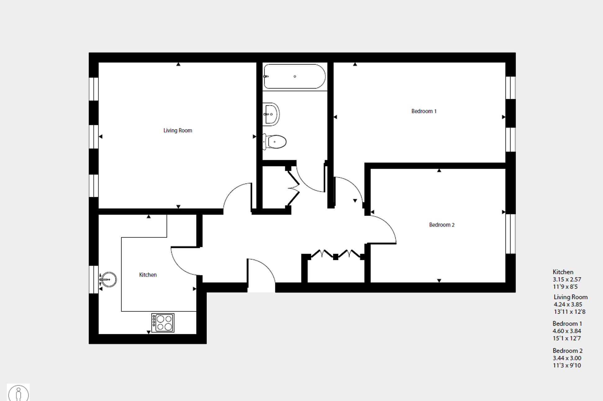
Featuring a spacious living room and a separate kitchen, fitted with an oven, hob and hood. There are two comfortable, double bedrooms. The bathroom has a three-piece, white suite.

You'll also have access to a communal garden.

  • Tenure: Leasehold
  • Council tax band: D
  • Service charge is reviewed once a year

Please note that a local connection to Royal Borough of Windsor and Maidenhead is required. This could mean living, working or having family living in the area.

Download EPC

Features

  • Beds 2 Bedrooms
  • Bath 1 Bathroom
  • Tick Lease term remaining: 106 years
  • Tick Fitted kitchen with oven, hob and hood
  • Tick Two double bedrooms
  • Tick Three-piece, white bathroom suite
  • Tick Communal garden

Floor Plans

Email floor plans

Share floor plans

Floor plan

Use two fingers to zoom
floor plan

Email floor plans

Share floor plans

  • floor plan image

Shared Ownership

In this section, you'll find lots of handy information about buying Shared Ownership home, including how to know if you're eligible, and what home improvements you can make.

How it works

Not sure if you're eligible?

How to apply How it works

Help & advice

We've a whole host of guides covering lots of topics. So whether you're a first-time buyer, second stepper, Shared Ownership seller or existing home owner in need of some guidance, check out our help and advice section.

Find out more

Wondering about your next steps?

Buying guides Find out more

Similar Developments

INCENTIVE AVAILABLE
Horlicks Quarter

Horlicks Quarter

Slough

Join us for the opening of Engineering Mews Show Home on Saturday 11 October 2025. Book your appointment today. Get up to £1000 towards either your deposit of legal fees ...

Home Apartments
COMING SOON
Ambia

Ambia

Maidenhead

Ambia is a new collection of one and two bedroom apartments set in the market town of Maidenhead. You’ll have lots to explore nearby, with a choice of shops, pubs and ...

Home Apartments
Sunningdale Park

Sunningdale Park

Sunningdale

Join us for our Autumn Open Day, Saturday 11 October. Secure your place today. Tucked within 47 acres of leafy parkland, our new homes in Ascot offer a serene slice of country ...

Home Apartments

Find Us

By appointment only.

Address

Gray Court
Gray Court
Bridgeman Drive
Windsor
SL4 3SW

MarkerView on Google Map

We're award winning

FTB Awards21 HC Dark WHA21 Logo Winner Bronze Rgb FTB Awards22 HC Dark (1) FTB Awards24 HC Dark BRPA WINNER Website Version