You are here:

7, 69 Newfoundland Drive

2-Bedroom Flat

69 Newfoundland Drive
Poole BH15 1YE

69 NEWFOUNDLAND DRIVE

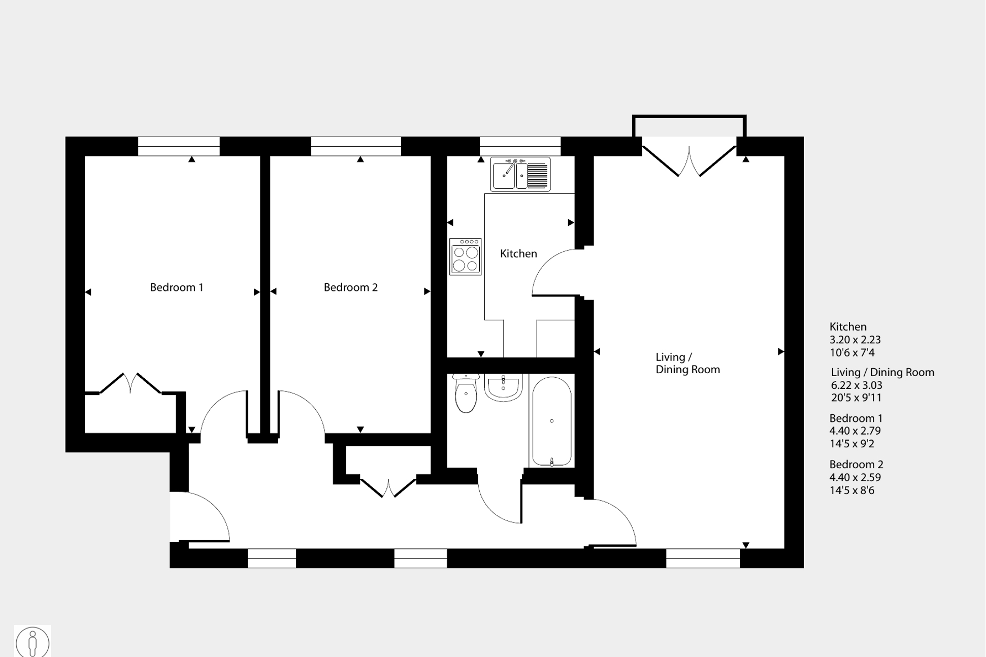
This spacious two bedroom, second floor apartment is in Poole. Parking provided! Available on Shared Ownership resale you could buy with just a 5% deposit.

Featuring a spacious living area with a Juliette balcony. The kitchen has an integrated oven, hob and hood. There are two spacious bedrooms, with built-in storage to the master. The bathroom has a modern, white suite.

You'll also have your own parking space.

  • Tenure: Leasehold
  • Council tax band: C
  • Service charge is reviewed once a year.

Download EPC

Download Key Information Document

Features

  • Beds 2 Bedrooms
  • Bath 1 Bathroom
  • Tick Lease term remaining: 168 years
  • Tick Spacious living area
  • Tick Fitted kitchen with oven, hob and hood
  • Tick Juliette balcony
  • Tick Your own parking space

Floor Plans

Email floor plans

Share floor plans

Floor plan

Use two fingers to zoom
floor plan

Email floor plans

Share floor plans

  • floor plan image

Shared Ownership

In this section, you'll find lots of handy information about buying Shared Ownership home, including how to know if you're eligible, and what home improvements you can make.

How it works

Not sure if you're eligible?

How to apply How it works

Help & advice

We've a whole host of guides covering lots of topics. So whether you're a first-time buyer, second stepper, Shared Ownership seller or existing home owner in need of some guidance, check out our help and advice section.

Find out more

Wondering about your next steps?

Buying guides Find out more

Similar Developments

READY TO MOVE IN NOW*
Bincombe Park

Bincombe Park

Weymouth

Life feels a little easier at Bincombe Park. Tucked into the peaceful village of Littlemoor, this new collection of two, three and four bedroom Shared Ownership homes sits ...

Home Houses & Apartments
SOLD OUT
Primrose Gardens

Primrose Gardens

Eastleigh

All homes at Primrose Gardens have now sold. Search for more homes nearby. Primrose Gardens is a welcoming new community of three and four bedroom shared ownership houses in ...

OVER 70% SOLD
The Tidings

The Tidings

Salisbury

The Tidings is a new development of two, three and four bedroom homes in Old Sarum near Salisbury. You’ll have day-to-day essentials within easy reach, including a community ...

Find Us

By appointment only

Address

69 Newfoundland Drive
69 Newfoundland Drive
Poole
Poole
BH15 1YE

MarkerView on Google Map

We're award winning

FTB Awards21 HC Dark WHA21 Logo Winner Bronze Rgb FTB Awards22 HC Dark (1) FTB Awards24 HC Dark BRPA WINNER Website Version