You are here:

Plot 51 - Chatham Heights

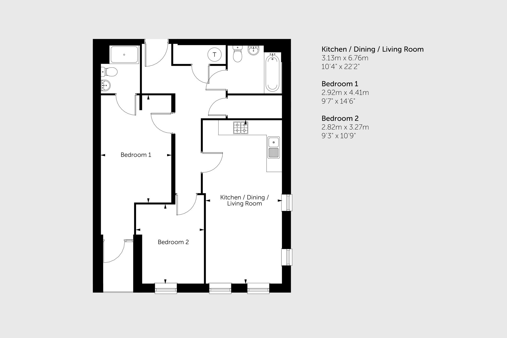
2-Bedroom Flat

Chatham Heights
Reading RG1 7DS

TYPE O

Featuring a modern, open-plan living area with dual-aspect windows. The kitchen is fitted with an oven, hob and hood. There are two comfortable bedrooms with an ensuite to the master bedroom. The bathroom has a modern, white suite.

You'll also have your own parking space with an electric vehicle charging point.

  • Tenure: Leasehold.
  • Length of lease: 990 years.
  • Reservation fee: £500.
  • Predicted council tax band: New build properties, band to be determined.
  • Service charge is reviewed once a year.

Features

  • Beds 2 Bedrooms
  • Bath 2 Bathrooms
  • Tick Fourth floor apartment
  • Tick Dual aspect, open-plan living area
  • Tick Fitted kitchen with oven, hob and hood
  • Tick Modern, white bathroom suites
  • Tick Your own parking space with an electric vehicle charging point

Floor Plans

Floorplan

Use two fingers to zoom
floor plan

Block layout

Use two fingers to zoom
floor plan

Email floor plans

Share floor plans

  • floor plan image
  • floor plan image

Specifications

    • Vinyl flooring to hall, kitchen / living / dining room, bathroom and ensuite
    • Grey carpets to bedrooms
    • White matte walls and ceilings
    • Double-glazed windows
    • Mains-operated smoke and carbon monoxide detectors
    • Telephone point to hall, living / dining room, kitchen, and master bedroom
    • TV aerial point to living / dining room, kitchen, and bedrooms
    • Fibre broadband connection available
    • Symphony ‘Platinum’ fitted soft-close kitchen doors and drawers with grey units
    • Grey Terrazzo laminate worktops with matching upstand
    • Glass splashback behind hob
    • 1 ½ bowl stainless-steel sink with chrome mixer tap
    • Electrolux ceramic hob, stainless-steel single fan oven, and cooker hood
    • Electrolux washing machine
    • Space for fridge freezer
    • Roca white sanitaryware with dual-flush WC
    • Chrome mixer taps
    • Porcelanosa tiled splashback above sink and full height above bath and shower
    • Thermostatic shower over bath with glass shower screen to bathroom
    • Thermostatic shower with bi-fold doors to ensuite
    • Shaver socket
    • Heated chrome towel rail
    • Pendant lighting to hall, living / dining room and bedrooms
    • LED downlights on a track to kitchen
    • Downlights to bathroom and ensuite
    • Electric radiators
    • Traditional build
    • Fibre to premises
    • Mains gas and electricity
    • Mains water and sewerage

OVERVIEW

  • Vinyl flooring to hall, kitchen / living / dining room, bathroom and ensuite
  • Grey carpets to bedrooms
  • White matte walls and ceilings
  • Double-glazed windows
  • Mains-operated smoke and carbon monoxide detectors
  • Telephone point to hall, living / dining room, kitchen, and master bedroom
  • TV aerial point to living / dining room, kitchen, and bedrooms
  • Fibre broadband connection available
OVERVIEW

KITCHEN

  • Symphony ‘Platinum’ fitted soft-close kitchen doors and drawers with grey units
  • Grey Terrazzo laminate worktops with matching upstand
  • Glass splashback behind hob
  • 1 ½ bowl stainless-steel sink with chrome mixer tap
  • Electrolux ceramic hob, stainless-steel single fan oven, and cooker hood
  • Electrolux washing machine
  • Space for fridge freezer
KITCHEN

BATHROOM

  • Roca white sanitaryware with dual-flush WC
  • Chrome mixer taps
  • Porcelanosa tiled splashback above sink and full height above bath and shower
  • Thermostatic shower over bath with glass shower screen to bathroom
  • Thermostatic shower with bi-fold doors to ensuite
  • Shaver socket
  • Heated chrome towel rail
BATHROOM

HEATING AND LIGHTING

  • Pendant lighting to hall, living / dining room and bedrooms
  • LED downlights on a track to kitchen
  • Downlights to bathroom and ensuite
  • Electric radiators
HEATING AND LIGHTING

IMPORTANT INFORMATION

  • Traditional build
  • Fibre to premises
  • Mains gas and electricity
  • Mains water and sewerage
IMPORTANT INFORMATION
  • OVERVIEW
  • KITCHEN
  • BATHROOM
  • HEATING AND LIGHTING
  • IMPORTANT INFORMATION

Local Area

  • From our new build homes in Reading, you can easily stretch your legs at Victoria Park Recreation Ground or wander the historic Abbey Ruins. Like to keep fit? Palmer Park offers running tracks and a leisure centre. Prefer to relax? There are plenty of cafés and shops nearby to keep life simple.

    • Iceland Iceland 5 minutes Iceland
    • Tesco Express Tesco Express 5 minutes Tesco Express
    • Victoria playground Victoria playground 11 minutes Victoria playground
    • Abbey Ruins Abbey Ruins 18 minutes Abbey Ruins
    • Maidenhead Maidenhead 22 minutes Maidenhead
  • Our new homes in Reading offer easy access to education for all ages. Oxford Road Community School is an eight minute walk, with Redlands Primary also close by. Older children can attend The Abbey School or St Joseph’s College, while the University of Reading is just seven minutes away.

    • Oxford Road Community School Oxford Road Community School 8 minutes Oxford Road Community School
    • The Abbey School The Abbey School 6 minutes The Abbey School
    • University of Reading University of Reading 7 minutes University of Reading
    • Redlands Primary School Redlands Primary School 8 minutes Redlands Primary School
    • St Joseph's College St Joseph's College 9 minutes St Joseph's College
  • Getting around is easy from our apartments for sale in Reading. The nearest bus stop is just three minutes away, and Reading station is a quick walk with trains to London in no time. Travelling further? The M4 is only 12 minutes by car, perfect for spontaneous trips or exploring the South East.

    • Nearest bus stop Nearest bus stop 3 minutes Nearest bus stop
    • Reading West station Reading West station 11 minutes Reading West station
    • Reading station Reading station 13 minutes Reading station
    • M4 M4 12 minutes M4

LOCAL AREA

From our new build homes in Reading, you can easily stretch your legs at Victoria Park Recreation Ground or wander the historic Abbey Ruins. Like to keep fit? Palmer Park offers running tracks and a leisure centre. Prefer to relax? There are plenty of cafés and shops nearby to keep life simple.

  • Iceland 5 minutes Iceland Iceland
  • Tesco Express 5 minutes Tesco Express Tesco Express
  • Victoria playground 11 minutes Victoria playground Victoria playground
  • Abbey Ruins 18 minutes Abbey Ruins Abbey Ruins
  • Maidenhead 22 minutes Maidenhead Maidenhead

SCHOOLS

Our new homes in Reading offer easy access to education for all ages. Oxford Road Community School is an eight minute walk, with Redlands Primary also close by. Older children can attend The Abbey School or St Joseph’s College, while the University of Reading is just seven minutes away.

  • Oxford Road Community School 8 minutes Oxford Road Community School Oxford Road Community School
  • The Abbey School 6 minutes The Abbey School The Abbey School
  • University of Reading 7 minutes University of Reading University of Reading
  • Redlands Primary School 8 minutes Redlands Primary School Redlands Primary School
  • St Joseph's College 9 minutes St Joseph's College St Joseph's College

TRANSPORT

Getting around is easy from our apartments for sale in Reading. The nearest bus stop is just three minutes away, and Reading station is a quick walk with trains to London in no time. Travelling further? The M4 is only 12 minutes by car, perfect for spontaneous trips or exploring the South East.

  • Nearest bus stop 3 minutes Nearest bus stop Nearest bus stop
  • Reading West station 11 minutes Reading West station Reading West station
  • Reading station 13 minutes Reading station Reading station
  • M4 12 minutes M4 M4

Shared Ownership

In this section, you'll find lots of handy information about buying Shared Ownership home, including how to know if you're eligible, and what home improvements you can make.

How it works

Not sure if you're eligible?

How to apply How it works

Help & advice

We've a whole host of guides covering lots of topics. So whether you're a first-time buyer, second stepper, Shared Ownership seller or existing home owner in need of some guidance, check out our help and advice section.

Find out more

Wondering about your next steps?

Buying guides Find out more

Similar Developments

INCENTIVE AVAILABLE
Carter's Court SO

Carter's Court SO

Reading

Enjoy up to £500 towards your legal fees!* Introducing Carter's Court, a collection of new build flats in Reading. Featuring one, two and three bedroom apartments, it's an ...

Home Apartments
Emmer Green Drive

Emmer Green Drive

Reading

Welcome to Reading, a vibrant town where the arts, colourful culture and Reading Festival all come together to bring you closer to your neighbours, whether you’re exploring a ...

Home Houses & Apartments
Herons Lake

Herons Lake

Reading

Herons Lake is a new collection of two, three and four bedroom homes offering Shared Ownership in Reading. Nestled in the charming village of Theale, these homes put everyday ...

Home Houses & Apartments

Find Us

By appointment only.

Address

Chatham Heights
115 Chatham Street
Reading
RG1 7DS

MarkerView on Google Map

We're award winning

FTB Awards22 HC Dark (1) FTB Awards24 HC Dark BRPA WINNER Website Version WHA25 Logo Gold