You are here:

Plot 60 - Blendworth Fields

4-Bedroom House

Blendworth Fields
Horndean PO8 0DE

THE HAWTHORN

This detached house features a kitchen / dining room with bay window and a separate living room with French doors out to your garden. The kitchen is fitted with an oven, hob, fridge freezer, dishwasher and washing machine. On this floor, you’ll also find a WC and storage cupboards.

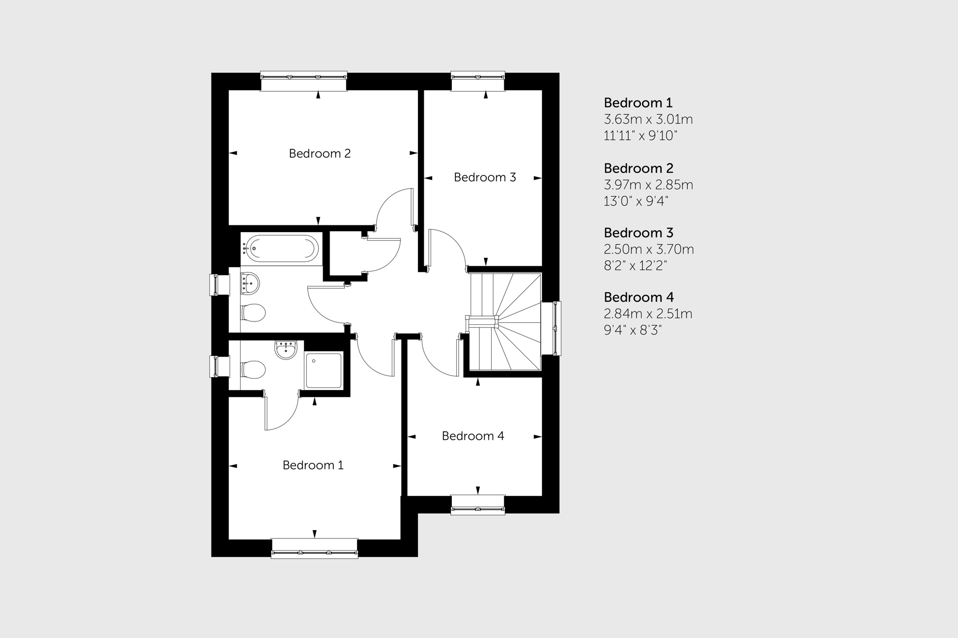
Upstairs, there are four bedrooms with an ensuite to the master, and a central bathroom which has a modern, white suite.

Flooring is included throughout your home and you'll also have three parking spaces with an electric vehicle charging point.

  • Tenure: Leasehold.
  • Length of lease: 990 years.
  • Predicted council tax band: Newbuild home, band to be determined.
  • Service charge is reviewed once a year.

Features

  • Beds 4 Bedrooms
  • Bath 2 Bathrooms
  • Tick Open-plan kitchen / dining room with white goods included
  • Tick Living room with French doors to your garden
  • Tick Ensuite to master bedroom
  • Tick Energy efficient air source heat pump
  • Tick Three driveway parking spaces with EV charging

Floor Plans

GROUND FLOOR

Use two fingers to zoom
floor plan

FIRST FLOOR

Use two fingers to zoom
floor plan

Email floor plans

Share floor plans

  • floor plan image
  • floor plan image

Specifications

    • Karndean grey studio oak LVT to kitchen, hall, bathroom and ensuite
    • Carpets to living room, stairs, landing and bedrooms
    • White matte walls and ceilings
    • Double-glazed windows
    • Mains-operated smoke detectors & ample double power sockets throughout
    • Patio area and turfed garden, tap to back of house
    • Telephone point and TV sockets to living room and master bedroom
    • Electric vehicle charging point
    • Symphony fitted kitchen units
    • Co-ordinating worktops with matching upstand
    • 1½ bowl stainless-steel sink with chrome mixer tap
    • Light grey glass splashback
    • Hotpoint ceramic hob, single fan oven, and stainless steel cooker hood
    • Integrated Hotpoint fridge freezer
    • Integrated Electrolux washing machine
    • Integrated Electrolux dishwasher
    • Roca white sanitaryware with dual-flush WC
    • Chrome taps
    • Half-height tiling to ensuite and bathroom, splashback above sink and full height around bath and shower
    • Thermostatic shower over bath with glass shower screen
    • Heated chrome towel rail to bathroom and ensuite
    • Mirror to bathroom, ensuite and WC
    • Track lights and under-unit lighting to kitchen
    • LED downlights to bathrooms and WC
    • Pendant lighting to hall, living / dining room and bedrooms
    • Air source heat pumps
    • Underfloor heating to ground floor
    • Radiators with thermostatic controls to first floor
    • Light to front and back
    • Heating type: Air source heat pump providing underfloor heating to ground floor and radiators to first floor
    • Electric supply type: Mains
    • Water supply type: Mains
    • Broadband type: FTTP
    • Sewage type: Mains via pumping station
    • Build type : Traditional timber frame
    • Electric vehicle charging points to parking spaces

OVERVIEW

  • Karndean grey studio oak LVT to kitchen, hall, bathroom and ensuite
  • Carpets to living room, stairs, landing and bedrooms
  • White matte walls and ceilings
  • Double-glazed windows
  • Mains-operated smoke detectors & ample double power sockets throughout
  • Patio area and turfed garden, tap to back of house
  • Telephone point and TV sockets to living room and master bedroom
  • Electric vehicle charging point
OVERVIEW

KITCHEN

  • Symphony fitted kitchen units
  • Co-ordinating worktops with matching upstand
  • 1½ bowl stainless-steel sink with chrome mixer tap
  • Light grey glass splashback
  • Hotpoint ceramic hob, single fan oven, and stainless steel cooker hood
  • Integrated Hotpoint fridge freezer
  • Integrated Electrolux washing machine
  • Integrated Electrolux dishwasher
KITCHEN

BATHROOM

  • Roca white sanitaryware with dual-flush WC
  • Chrome taps
  • Half-height tiling to ensuite and bathroom, splashback above sink and full height around bath and shower
  • Thermostatic shower over bath with glass shower screen
  • Heated chrome towel rail to bathroom and ensuite
  • Mirror to bathroom, ensuite and WC
BATHROOM

HEATING AND LIGHTING

  • Track lights and under-unit lighting to kitchen
  • LED downlights to bathrooms and WC
  • Pendant lighting to hall, living / dining room and bedrooms
  • Air source heat pumps
  • Underfloor heating to ground floor
  • Radiators with thermostatic controls to first floor
  • Light to front and back
HEATING AND LIGHTING

IMPORTANT INFORMATION

  • Heating type: Air source heat pump providing underfloor heating to ground floor and radiators to first floor
  • Electric supply type: Mains
  • Water supply type: Mains
  • Broadband type: FTTP
  • Sewage type: Mains via pumping station
  • Build type : Traditional timber frame
  • Electric vehicle charging points to parking spaces
IMPORTANT INFORMATION
  • OVERVIEW
  • KITCHEN
  • BATHROOM
  • HEATING AND LIGHTING
  • IMPORTANT INFORMATION

Development site plan

Download site plan
Use two fingers to zoom
Development map showing plot locations

Local Area

  • Nestled near the South Downs, life at our new homes in Horndean keeps you close to both nature and convenience. Enjoy scenic walks at Hazelton Common Nature Reserve, then stop by Keydell Nurseries’ tearoom to unwind. Or relax with friends at the friendly Ship & Bell pub, just a short walk from home.

    • Nisa Nisa 3 minutes Nisa
    • Horndean Surgery Horndean Surgery 3 minutes Horndean Surgery
    • Hazelton Common Nature Reserve Hazelton Common Nature Reserve 6 minutes Hazelton Common Nature Reserve
    • Four London Road Four London Road 13 minutes Four London Road
    • The Ship & Bell The Ship & Bell 13 minutes The Ship & Bell
  • Families at our shared ownership homes in Horndean will have excellent schools nearby. Children can walk to Horndean Infant, C of E Junior, or Horndean Technology College in less than 30 minutes. South Downs and Havant Colleges are also only a short drive, making further education easy to reach.

    • Horndean Infant School Horndean Infant School 21 minutes Horndean Infant School
    • Horndean C of E Junior School Horndean C of E Junior School 20 minutes Horndean C of E Junior School
    • Horndean Technology College Horndean Technology College 28 minutes Horndean Technology College
    • South Downs College South Downs College 10 minutes South Downs College
    • Havant College Havant College 12 minutes Havant College
  • From our houses for sale in Horndean, the South East is at your fingertips. The nearest bus stop is a short walk, or drive 6 minutes to Rowlands Castle Station for trains to London, Guildford and Woking. The A3 and M27 make countryside escapes easy, and Southampton Airport is only 34 minutes away.

    • A3 A3 3 minutes A3
    • Rowlands Castle train station Rowlands Castle train station 6 minutes Rowlands Castle train station
    • M27 M27 9 minutes M27
    • Nearest bus stop Nearest bus stop 16 minutes Nearest bus stop
    • Southampton Airport Southampton Airport 34 minutes Southampton Airport

Local area

Nestled near the South Downs, life at our new homes in Horndean keeps you close to both nature and convenience. Enjoy scenic walks at Hazelton Common Nature Reserve, then stop by Keydell Nurseries’ tearoom to unwind. Or relax with friends at the friendly Ship & Bell pub, just a short walk from home.

  • Nisa 3 minutes Nisa Nisa
  • Horndean Surgery 3 minutes Horndean Surgery Horndean Surgery
  • Hazelton Common Nature Reserve 6 minutes Hazelton Common Nature Reserve Hazelton Common Nature Reserve
  • Four London Road 13 minutes Four London Road Four London Road
  • The Ship & Bell 13 minutes The Ship & Bell The Ship & Bell

Schools

Families at our shared ownership homes in Horndean will have excellent schools nearby. Children can walk to Horndean Infant, C of E Junior, or Horndean Technology College in less than 30 minutes. South Downs and Havant Colleges are also only a short drive, making further education easy to reach.

  • Horndean Infant School 21 minutes Horndean Infant School Horndean Infant School
  • Horndean C of E Junior School 20 minutes Horndean C of E Junior School Horndean C of E Junior School
  • Horndean Technology College 28 minutes Horndean Technology College Horndean Technology College
  • South Downs College 10 minutes South Downs College South Downs College
  • Havant College 12 minutes Havant College Havant College

Transport

From our houses for sale in Horndean, the South East is at your fingertips. The nearest bus stop is a short walk, or drive 6 minutes to Rowlands Castle Station for trains to London, Guildford and Woking. The A3 and M27 make countryside escapes easy, and Southampton Airport is only 34 minutes away.

  • A3 3 minutes A3 A3
  • Rowlands Castle train station 6 minutes Rowlands Castle train station Rowlands Castle train station
  • M27 9 minutes M27 M27
  • Nearest bus stop 16 minutes Nearest bus stop Nearest bus stop
  • Southampton Airport 34 minutes Southampton Airport Southampton Airport

Shared Ownership

In this section, you'll find lots of handy information about buying Shared Ownership home, including how to know if you're eligible, and what home improvements you can make.

How it works

Not sure if you're eligible?

How to apply How it works

Help & advice

We've a whole host of guides covering lots of topics. So whether you're a first-time buyer, second stepper, Shared Ownership seller or existing home owner in need of some guidance, check out our help and advice section.

Find out more

Wondering about your next steps?

Buying guides Find out more

Similar Developments

COMING SOON
Alexandra Place

Alexandra Place

Alton

Alexandra Place is a charming new development of two and three bedroom Shared Ownership houses in Alton. Nestled in this historic market town, you’ll find a lively high ...

COMING SOON
Parkland Meadows

Parkland Meadows

Fareham

Our collection of one, two, three and four bedroom Shared Ownership homes in Fareham offers a fresh start in a charming new development. Set on Funtley Road, you’ll be just a ...

Home Houses & Apartments
Warbler Park

Warbler Park

Normandy

Warbler Park is a new collection of two and three bedroom homes set in the picturesque village of Normandy. Situated close to Normandy Common and Loseley Park, you’ll be ...

Find Us

Pop in on Thursdays or other days by appointment only.

Address

Blendworth Fields
Rowlands Castle Road
Horndean
PO8 0DE

Opening hours

  • Thursday 10.00am - 4.00pm
MarkerView on Google Map

We're award winning

FTB Awards22 HC Dark (1) FTB Awards24 HC Dark BRPA WINNER Website Version WHA25 Logo Gold