You are here:

  • Home
  • 2 Bedroom flat

24 Rise Road

2-Bedroom Flat

Rise Road
Ascot SL5 0BQ Local area connection required

RISE ROAD

This two bedroom, first floor apartment is in Ascot. Parking provided! Available on Shared Ownership resale you could buy with just a 5% deposit.

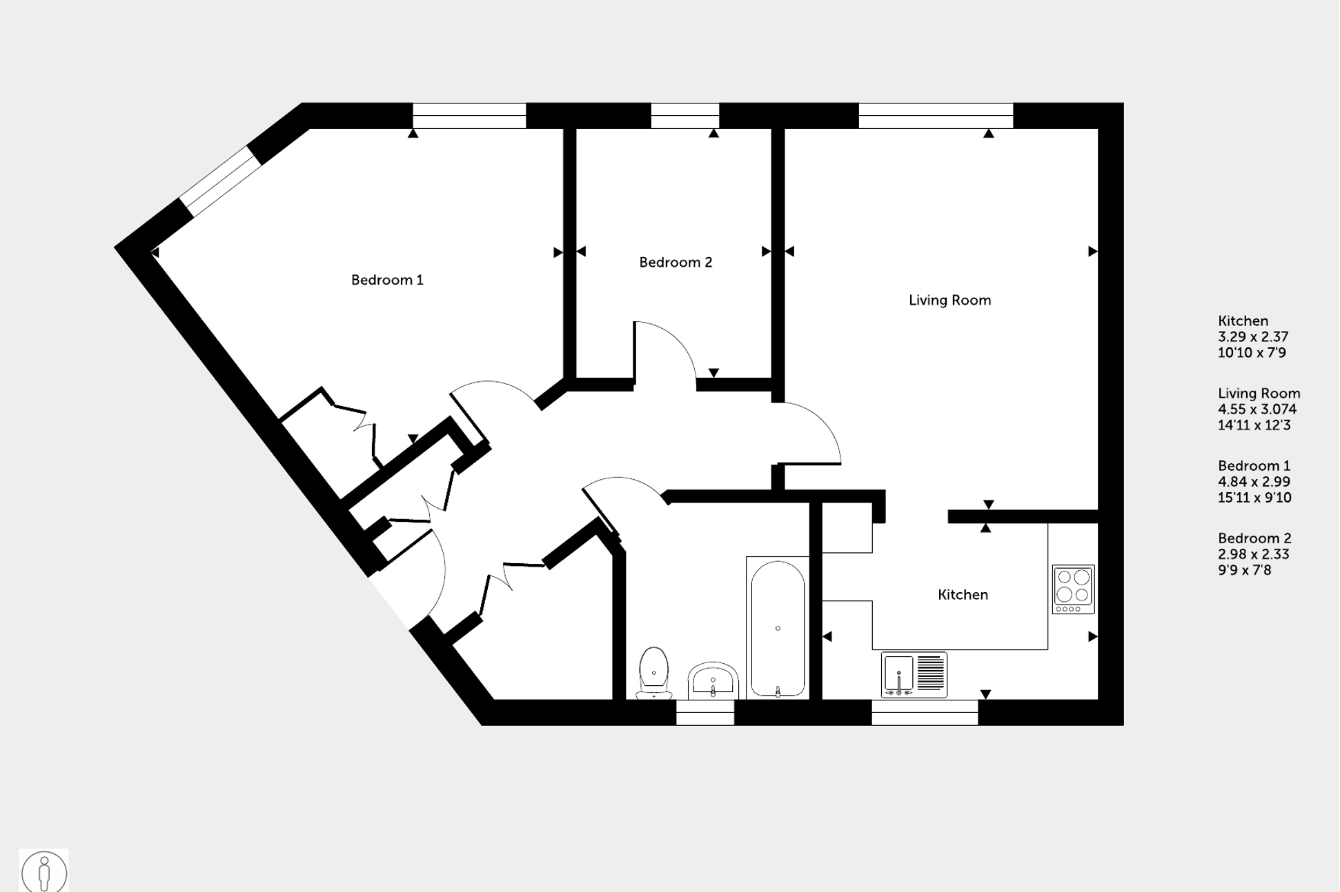
Featuring a spacious living / dining room. The kitchen has an integrated oven, hob and hood. There are two bedrooms. The bathroom has a modern, white suite.

You'll also have your own parking space.

  • Tenure: Leasehold.
  • Council tax band: C.
  • Service charge is reviewed once a year.

Please note that a local connection to Windsor and Maidenhead is required. This could mean living, working or having family living in the area.

Download EPC

Features

  • Beds 2 Bedrooms
  • Bath 1 Bathroom
  • Tick Lease term remaining: 112 years
  • Tick Open-plan living / dining room
  • Tick Fitted kitchen with oven, hob and hood
  • Tick Modern, white bathroom suite
  • Tick Your own parking space

Floor Plans

Email floor plans

Share floor plans

Floor plan

Use two fingers to zoom
floor plan

Email floor plans

Share floor plans

  • floor plan image

Shared Ownership

In this section, you'll find lots of handy information about buying Shared Ownership home, including how to know if you're eligible, and what home improvements you can make.

How it works

Not sure if you're eligible?

How to apply How it works

Help & advice

We've a whole host of guides covering lots of topics. So whether you're a first-time buyer, second stepper, Shared Ownership seller or existing home owner in need of some guidance, check out our help and advice section.

Find out more

Wondering about your next steps?

Buying guides Find out more

Similar Developments

READY NOW^
Sunningdale Park

Sunningdale Park

Sunningdale

Join us for our Spring Viewing Event, Saturday 11 April Tucked within 47 acres of leafy parkland, our new homes in Ascot offer a serene slice of country living without losing ...

Home Apartments
COMING SOON
Brickmark Place

Brickmark Place

Bracknell

Brickmark Place is a new collection of one and two bedroom Shared Ownership apartments in Bracknell, just a short stroll from The Lexicon with its shops, restaurants and ...

Home Apartments
INCENTIVE AVAILABLE*
Horlicks Quarter

Horlicks Quarter

Slough

Reserve your new home on or before Saturday 6 June and choose from £500 towards legal fees, a One4All voucher or a rail card contribution*. Welcome to Slough, one of London’s ...

Home Apartments

Find Us

By appointment only.

Address

Rise Road
Rise Road
Ascot
SL5 0BQ

MarkerView on Google Map

We're award winning

FTB Awards22 HC Dark (1) FTB Awards24 HC Dark BRPA WINNER Website Version WHA25 Logo Gold