You are here:

Plot 5 - Blendworth Fields

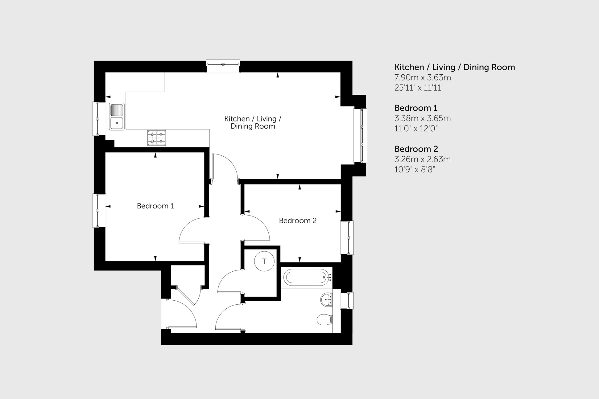
2-Bedroom Flat

Blendworth Fields
Horndean PO8 0DE

THE BIRCHWOOD

Featuring an open-plan kitchen and living area. The kitchen is fitted with an oven, hob and hood as well as a washer-dryer and fridge freezer. 

You'll also find two comfortable bedrooms, two storage cupboards and a bathroom with a modern, white suite.

Outside you'll have two parking spaces with an electric vehicle charging point.

  • Tenure: Leasehold.
  • Length of lease: 990 years.
  • Predicted council tax band: Newbuild home, band to be determined.
  • Service charge is reviewed once a year.

Features

  • Beds 2 Bedrooms
  • Bath 1 Bathroom
  • Tick Open-plan kitchen and living area
  • Tick Energy efficient solar panels
  • Tick Fitted kitchen with integrated hob, fridge freezer and washer-dryer
  • Tick Karndean flooring and carpet throughout
  • Tick Two parking spaces with EV charging

Floor Plans

Email floor plans

Share floor plans

FLOOR PLAN

Use two fingers to zoom
floor plan

Email floor plans

Share floor plans

  • floor plan image

Specifications

    • Karndean grey studio oak LVT to kitchen, hall and bathroom
    • Carpets to living room, stairs, landing and bedrooms
    • White matte walls and ceilings
    • Double-glazed windows
    • Mains-operated smoke detectors
    • Ample double power sockets throughout
    • Telephone point and TV sockets to living room and master bedroom
    • Wired network point to living room, Sky Q connection available
    • Symphony pebble fitted kitchen units
    • Co-ordinating worktops with matching upstand
    • 1½ bowl stainless-steel sink with chrome mixer tap
    • Light grey glass splashback
    • Hotpoint ceramic hob, single fan oven, and stainless steel cooker hood
    • Integrated Hotpoint fridge freezer
    • Integrated Electrolux washer/dryer
    • Removable unit with space and plumbing for dishwasher
    • Roca white sanitaryware with dual-flush WC
    • Chrome taps
    • Half-height tiling to bathrooms, splashback above sink and full height around bath
    • Electric shower over bath with glass shower screen
    • Heated chrome towel rail to bathroom and ensuite
    • Mirror
    • Track lights and under-unit lighting to kitchen
    • LED downlights to bathroom
    • Pendant lighting to hall, living / dining room and bedrooms
    • Electric panel heaters
    • Heating type: Electric panel radiators
    • Electric supply type: Mains & solar panels
    • Water supply type: Mains
    • Broadband type: FTTP
    • Sewage type: Mains via pumping station
    • Build type : Timber frame
    • Electric vehicle charging points to parking spaces
    • Video door entry and communal bike and bin stores

OVERVIEW

  • Karndean grey studio oak LVT to kitchen, hall and bathroom
  • Carpets to living room, stairs, landing and bedrooms
  • White matte walls and ceilings
  • Double-glazed windows
  • Mains-operated smoke detectors
  • Ample double power sockets throughout
  • Telephone point and TV sockets to living room and master bedroom
  • Wired network point to living room, Sky Q connection available
OVERVIEW

KITCHEN

  • Symphony pebble fitted kitchen units
  • Co-ordinating worktops with matching upstand
  • 1½ bowl stainless-steel sink with chrome mixer tap
  • Light grey glass splashback
  • Hotpoint ceramic hob, single fan oven, and stainless steel cooker hood
  • Integrated Hotpoint fridge freezer
  • Integrated Electrolux washer/dryer
  • Removable unit with space and plumbing for dishwasher
KITCHEN

BATHROOM

  • Roca white sanitaryware with dual-flush WC
  • Chrome taps
  • Half-height tiling to bathrooms, splashback above sink and full height around bath
  • Electric shower over bath with glass shower screen
  • Heated chrome towel rail to bathroom and ensuite
  • Mirror
BATHROOM

HEATING AND LIGHTING

  • Track lights and under-unit lighting to kitchen
  • LED downlights to bathroom
  • Pendant lighting to hall, living / dining room and bedrooms
  • Electric panel heaters
HEATING AND LIGHTING

IMPORTANT INFORMATION

  • Heating type: Electric panel radiators
  • Electric supply type: Mains & solar panels
  • Water supply type: Mains
  • Broadband type: FTTP
  • Sewage type: Mains via pumping station
  • Build type : Timber frame
  • Electric vehicle charging points to parking spaces
  • Video door entry and communal bike and bin stores
IMPORTANT INFORMATION
  • OVERVIEW
  • KITCHEN
  • BATHROOM
  • HEATING AND LIGHTING
  • IMPORTANT INFORMATION

Development site plan

Download site plan
Use two fingers to zoom
Development map showing plot locations

Local Area

  • Nestled near the South Downs, life at our new homes in Horndean keeps you close to both nature and convenience. Enjoy scenic walks at Hazelton Common Nature Reserve, then stop by Keydell Nurseries’ tearoom to unwind. Or relax with friends at the friendly Ship & Bell pub, just a short walk from home.

    • Nisa Nisa 3 minutes Nisa
    • Horndean Surgery Horndean Surgery 3 minutes Horndean Surgery
    • Hazelton Common Nature Reserve Hazelton Common Nature Reserve 6 minutes Hazelton Common Nature Reserve
    • Four London Road Four London Road 13 minutes Four London Road
    • The Ship & Bell The Ship & Bell 13 minutes The Ship & Bell
  • Families at our shared ownership homes in Horndean will have excellent schools nearby. Children can walk to Horndean Infant, C of E Junior, or Horndean Technology College in less than 30 minutes. South Downs and Havant Colleges are also only a short drive, making further education easy to reach.

    • Horndean Infant School Horndean Infant School 21 minutes Horndean Infant School
    • Horndean C of E Junior School Horndean C of E Junior School 20 minutes Horndean C of E Junior School
    • Horndean Technology College Horndean Technology College 28 minutes Horndean Technology College
    • South Downs College South Downs College 10 minutes South Downs College
    • Havant College Havant College 12 minutes Havant College
  • From our houses for sale in Horndean, the South East is at your fingertips. The nearest bus stop is a short walk, or drive 6 minutes to Rowlands Castle Station for trains to London, Guildford and Woking. The A3 and M27 make countryside escapes easy, and Southampton Airport is only 34 minutes away.

    • A3 A3 3 minutes A3
    • Rowlands Castle train station Rowlands Castle train station 6 minutes Rowlands Castle train station
    • M27 M27 9 minutes M27
    • Nearest bus stop Nearest bus stop 16 minutes Nearest bus stop
    • Southampton Airport Southampton Airport 34 minutes Southampton Airport

Local area

Nestled near the South Downs, life at our new homes in Horndean keeps you close to both nature and convenience. Enjoy scenic walks at Hazelton Common Nature Reserve, then stop by Keydell Nurseries’ tearoom to unwind. Or relax with friends at the friendly Ship & Bell pub, just a short walk from home.

  • Nisa 3 minutes Nisa Nisa
  • Horndean Surgery 3 minutes Horndean Surgery Horndean Surgery
  • Hazelton Common Nature Reserve 6 minutes Hazelton Common Nature Reserve Hazelton Common Nature Reserve
  • Four London Road 13 minutes Four London Road Four London Road
  • The Ship & Bell 13 minutes The Ship & Bell The Ship & Bell

Schools

Families at our shared ownership homes in Horndean will have excellent schools nearby. Children can walk to Horndean Infant, C of E Junior, or Horndean Technology College in less than 30 minutes. South Downs and Havant Colleges are also only a short drive, making further education easy to reach.

  • Horndean Infant School 21 minutes Horndean Infant School Horndean Infant School
  • Horndean C of E Junior School 20 minutes Horndean C of E Junior School Horndean C of E Junior School
  • Horndean Technology College 28 minutes Horndean Technology College Horndean Technology College
  • South Downs College 10 minutes South Downs College South Downs College
  • Havant College 12 minutes Havant College Havant College

Transport

From our houses for sale in Horndean, the South East is at your fingertips. The nearest bus stop is a short walk, or drive 6 minutes to Rowlands Castle Station for trains to London, Guildford and Woking. The A3 and M27 make countryside escapes easy, and Southampton Airport is only 34 minutes away.

  • A3 3 minutes A3 A3
  • Rowlands Castle train station 6 minutes Rowlands Castle train station Rowlands Castle train station
  • M27 9 minutes M27 M27
  • Nearest bus stop 16 minutes Nearest bus stop Nearest bus stop
  • Southampton Airport 34 minutes Southampton Airport Southampton Airport

Shared Ownership

In this section, you'll find lots of handy information about buying Shared Ownership home, including how to know if you're eligible, and what home improvements you can make.

How it works

Not sure if you're eligible?

How to apply How it works

Help & advice

We've a whole host of guides covering lots of topics. So whether you're a first-time buyer, second stepper, Shared Ownership seller or existing home owner in need of some guidance, check out our help and advice section.

Find out more

Wondering about your next steps?

Buying guides Find out more

Similar Developments

COMING SOON
Alexandra Place

Alexandra Place

Alton

Alexandra Place is a charming new development of two and three bedroom Shared Ownership houses in Alton. Nestled in this historic market town, you’ll find a lively high ...

COMING SOON
Parkland Meadows

Parkland Meadows

Fareham

Our collection of one, two, three and four bedroom Shared Ownership homes in Fareham offers a fresh start in a charming new development. Set on Funtley Road, you’ll be just a ...

Home Houses & Apartments
Warbler Park

Warbler Park

Normandy

Warbler Park is a new collection of two and three bedroom homes set in the picturesque village of Normandy. Situated close to Normandy Common and Loseley Park, you’ll be ...

Find Us

By appointment only.

Address

Blendworth Fields
Rowlands Castle Road
Horndean
PO8 0DE

MarkerView on Google Map

We're award winning

FTB Awards22 HC Dark (1) FTB Awards24 HC Dark BRPA WINNER Website Version WHA25 Logo Gold